+48 17 852 52 30

WYSZUKIWARKA

Typy budynku:

KONDYGNACJE:

PODDASZE:

GARAŻE:

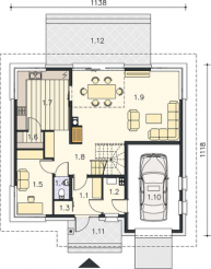
Projekt domu BASIA wersja A bez garażu

Interesujący dom, na planie litery L, dzięki czemu możliwe jest zbudowanie w ogrodzie intymnego wnętrza. Jego wnętrze jest z wszech miar praktyczne i zapewnia naprawdę wysoki komfort użytkowania.

Parter
Elewacje
Przekrój
Sytuacje

Podobne projekty

Promocja
ARABELLA II wersja B z antresolą i piwnicą
Arabella II różni się od Arabelli nachyleniem...
BERBERYS (S-GL 337)
Berberys to urozmaicona „parterówka”...
Koliba Plus
Dom parterowy, z użytkowym poddaszem,...
Lipińscy Dom Pasywny 1 (LDP01)
Spełnienie marzeń o rodzinnym, ciepłym domu....
IRYS 10-18 wersja B z pojedynczym garażem poszerzony
Nieduży, parterowy dom, prosty i tani w budowie,...
Arkadia III
CHARAKTERYSTYKA Dom z użytkowym poddaszem,...
Promocja
Origami IV G2 NF40
Projekt parterowego domu "Origami IV...
Promocja
Boguśka dr-T (DR-T)
Budynek mieszkalny jednorodzinny w technologii...
Powiadom mnie gdy projekt będzie w promocji
Pakiet korzyści
Pakiet korzyści przy zakupie projektu
Dane techniczne
Powierzchnia użytkowa: 124.50 m²
Powierzchnia zabudowy: 162 m²
Powierzchnia dachu: 238.90 m²
Kąt nachylenia: 22°
Wysokość budynku: 5.10 m
Wymiary działki: 22.20 x 0 m