+48 17 852 52 30

WYSZUKIWARKA

Typy budynku:

KONDYGNACJE:

PODDASZE:

GARAŻE:

BASIA wersja A bez garażu lustro 124.5 m² (DB: 25108)

Projekt domu BASIA wersja A bez garażu

Interesujący dom, na planie litery L, dzięki czemu możliwe jest zbudowanie w ogrodzie intymnego wnętrza. Jego wnętrze jest z wszech miar praktyczne i zapewnia naprawdę wysoki komfort użytkowania.

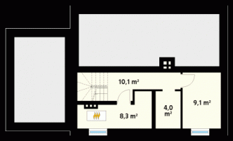
Parter
Elewacje
Przekrój
Sytuacje

Podobne projekty

AGIO wersja B z podwójnym garażem
To bardzo piękny i bardzo funkcjonalny dom....
Promocja
APS 053
Niewielki, pomysłowo zaprojektowany,...
KANON IV (S-GL 532)
Kanon IV to wersja projektu Kanon II, z piwnicą....
Zarzecze małe 11
Dom z poddaszem użytkowym. Garaż w obrębie...
LA PAZ
"La Paz" To niewielki, parterowy,...
Murator EM02 Konkursowy (z wentylacją mechaniczną)
Łączenie pomieszczeń to dobry sposób na...
Murator B07 Po sąsiedzku (bliźniak)
Regularna bryła przykryta kopertowym dachem...
Jaworze p-01
Wygodny dom – 6 pokoi, 2 łazienki, kotłownia...
Powiadom mnie gdy projekt będzie w promocji
Pakiet korzyści
Pakiet korzyści przy zakupie projektu
Dane techniczne
Powierzchnia użytkowa: 124.50 m²
Powierzchnia zabudowy: 162 m²
Powierzchnia dachu: 238.90 m²
Kąt nachylenia: 22°
Wysokość budynku: 5.10 m
Wymiary działki: 22.20 x 0 m