+48 17 852 52 30

WYSZUKIWARKA

Typy budynku:

KONDYGNACJE:

PODDASZE:

GARAŻE:

Projekt domu BW-12

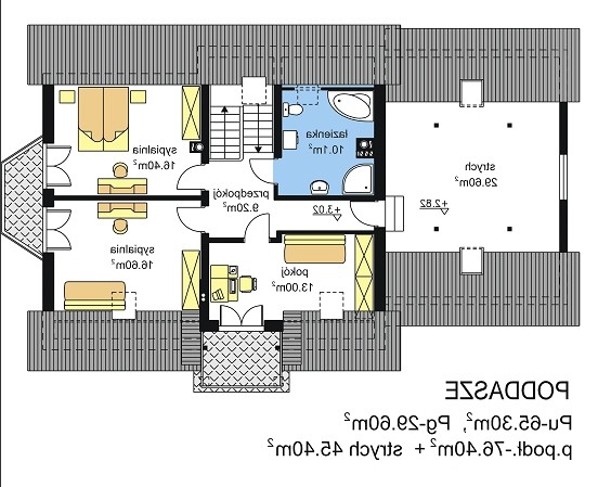
Budynek parterowy niepodpiwniczony, z poddaszem użytkowym. Rzut budynku oparto na kształcie prostokąta z przekryciem prostym dwuspadowym dachem. Na parterze 2 pokoje, kuchnia, spiżarka, wc, kotłownia i garaż dobudowany. Na poddaszu 3 sypialne, łazienka i strych nad garażem, który można zaadaptować na pokój.

Parter
Poddasze
Elewacje
Sytuacje

Podobne projekty

ADAŚ wersja A bez garażu
Elegancki, prosty i energooszczędny dom dla 4-5...
ADAŚ wersja B z pojedynczym garażem
Elegancki, prosty i energooszczędny dom dla 4-5...
ADAŚ II wersja A bez garażu
Elegancki, prosty i energooszczędny dom dla 4-5...
ADAŚ II wersja C z podwójnym garażem
Elegancki, prosty i energooszczędny dom dla 4-5...
ASIA wersja B bez kalenicy, z garażem
Zgrabny dom parterowy, niepodpiwniczony, z...
Promocja
BARTEK wersja B z pojedynczym garażem
Dom w cenie mieszkania. Nieduży, prosty w...
BENITA wersja A bez garażu
Dom zaprojektowany na planie litery L o...
DAGMARA wersja B z podwójnym garażem
Wygodny dom ułożony na planie litery L. Ramiona...
Powiadom mnie gdy projekt będzie w promocji
Pakiet korzyści
Pakiet korzyści przy zakupie projektu
Dane techniczne
Powierzchnia użytkowa: 139.90 m²
Powierzchnia zabudowy: 165.50 m²
Kubatura: 998.60 m³
Wymiary budynku: 18.50 x 10 m
Kąt nachylenia: 42°
Wysokość budynku: 9 m
Wymiary działki: 26.50 x 20.20 m