+48 17 852 52 30

WYSZUKIWARKA

Typy budynku:

KONDYGNACJE:

PODDASZE:

GARAŻE:

Projekt domu Somerset (DCB57)

Rozłożysty energooszczędny bungalow z efektownym wielospadowym dachem, podkreślającym nowoczesny charakter. Z pewnością jest to propozycja dla osób ceniących sobie trochę nietypowe, ale funkcjonalne rozwiązania. Centralnie usytuowany jasny salon z kominkiem jest sercem domu. Obok, częściowo oddzielona ścianką telewizyjną, przewidziana jest duża kuchnia ze stołem jadalnym i  spiżarnią. Dom mieści w sobie również wygodne trzy sypialnie oraz przepiękną oryginalnie doświetloną łazienkę z dużą wanną. Wygody dopełnia spore pomieszczenie gospodarcze, które łączy dom z  dwustanowiskowym garażem.

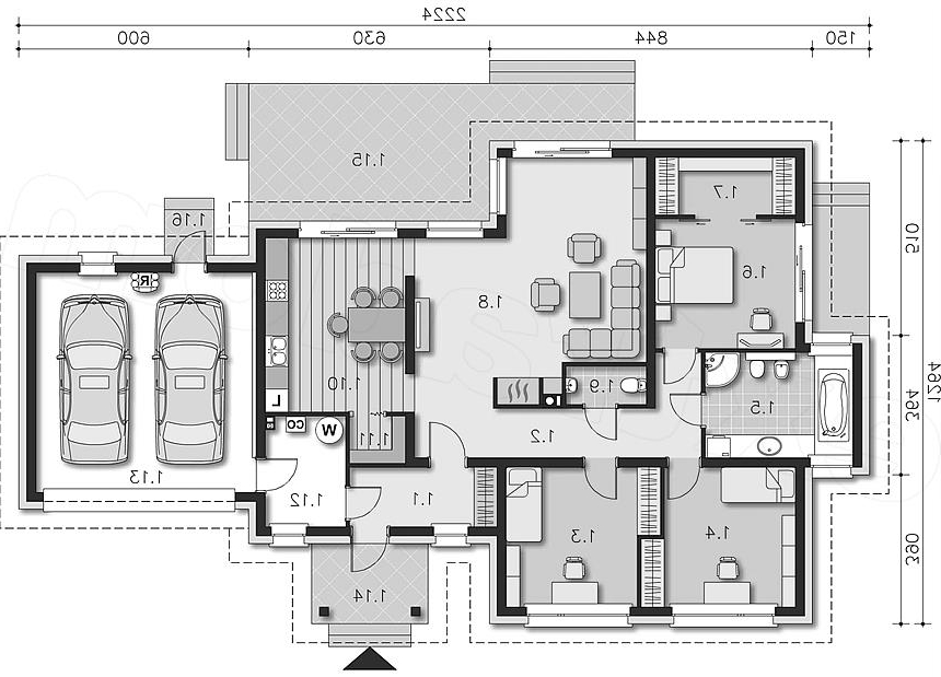
Parter (199.21 m2)
1. Wiatrołap 5.93 m2
2. Komunikacja 11.60 m2
3. Pokój 13.51 m2
4. Pokój 13.51 m2
5. Łazienka 10.55 m2
6. Pokój 12.74 m2
7. Garderoba 5.06 m2
8. Pokój dzienny 31.30 m2
9. Wc 2.09 m2
10. Kuchnia 16.56 m2
11. Spiżarnia 1.80 m2
12. Kotłownia 5.95 m2
13. Garaż 32.37 m2
14. Podest 6.37 m2
15. Taras 28.32 m2
16. Podest 1.55 m2
Elewacje
Sytuacje

Podobne projekty

ADAŚ wersja B z pojedynczym garażem
Elegancki, prosty i energooszczędny dom dla 4-5...
ADAŚ wersja C z podwójnym garażem
Elegancki, prosty i energooszczędny dom dla 4-5...
BENITA wersja C z podwójnym garażem
Dom zaprojektowany na planie litery L o...
BENITA wersja D z wiatą
Dom zaprojektowany na planie litery L o...
Promocja
BILBO wersja A - bez ścianki kolankowej
Nieduży, niepodpiwniczony domek parterowy z...
BORYS wersja C z podwójnym garażem
Niezwykle funkcjonalny, podpiwniczony dom...
EWA 2 wersja B zwężona
Dom w cenie mieszkania, niesamowicie funkcjonalny...
FIOŁEK wersja B większa z pojedynczym garażem
Parterowy dom dla 2,3,4 -osobowej rodziny....
Powiadom mnie gdy projekt będzie w promocji
Pakiet korzyści
Pakiet korzyści przy zakupie projektu
Dane techniczne
Powierzchnia użytkowa: 124.65 m²
Powierzchnia zabudowy: 205.50 m²
Kubatura: 963 m³
Wymiary budynku: 22.20 x 12.60 m
Kąt nachylenia: 30°
Wysokość budynku: 6.26 m
Wymiary działki: 28.20 x 20.60 m