+48 17 852 52 30

WYSZUKIWARKA

Typy budynku:

KONDYGNACJE:

PODDASZE:

GARAŻE:

Projekt domu Tokio II (DCP190a)

Interesujący dom energooszczędny z bardzo wygodnym układem funkcjonalnym. Nowoczesna bryła i wyszukany detal nadaje mu niebanalnego charakteru. Pokój dzienny, który wraz z kuchnią tworzy jedną przestrzeń, usytuowany jest od frontu, a jego przedłużenie stanowi taras z atrakcyjną pergolą. Wnętrze uzupełnione jest o dodatkowy pokój na parterze, a na poddaszu znajdują się trzy sypialnie, z których dwie mają wyjście na zadaszony taras nad garażem. Dom o nietypowym usytuowaniu z wjazdem od wschodu, dzięki czemu, mimo podwójnego garażu, można go wybudować na stosunkowo wąskiej działce. Po przeniesieniu wjazdu do garażu na stronę południową, dom można również usytuować na działce z wjazdem od południa.

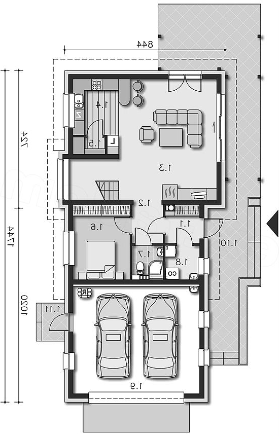
Parter (155.51 m2)
1. Kuchnia 3.48 m2
2. Spiżarnia 3.37 m2
3. Pokój 36.19 m2
4. Łazienka 7.62 m2
5. C.o. 1.49 m2
6. Garaż 11.73 m2
7. Taras 2.56 m2
8. Podest 3.20 m2
9. Wiatrołap 37.33 m2
10. Komunikacja 46.14 m2
11. Pokój dzienny 2.40 m2
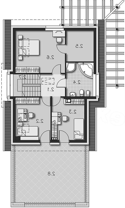
Poddasze (103.27 m2)
1. Komunikacja 5.18 m2
2. Pokój 9.95 m2
3. Pokój 11.33 m2
4. Łazienka 6.37 m2
5. Garderoba 5.06 m2
6. Pokój 15.67 m2
7. Schody 5.63 m2
8. Taras 44.08 m2
Elewacje
Sytuacje

Podobne projekty

ADAŚ II wersja A bez garażu
Elegancki, prosty i energooszczędny dom dla 4-5...
ASIA wersja A bez kalenicy, bez garażu
Zgrabny dom parterowy, niepodpiwniczony, z...
ASIA wersja B bez kalenicy, z garażem
Zgrabny dom parterowy, niepodpiwniczony, z...
BARTEK wersja A z wiatą
Dom w cenie mieszkania. Nieduży, prosty w...
BASIA wersja A bez garażu
Interesujący dom, na planie litery L, dzięki...
Promocja
BILBO wersja A - bez ścianki kolankowej
Nieduży, niepodpiwniczony domek parterowy z...
BORYS wersja A bez garażu
Niezwykle funkcjonalny, podpiwniczony dom...
EWA 2 wersja B zwężona
Dom w cenie mieszkania, niesamowicie funkcjonalny...
Powiadom mnie gdy projekt będzie w promocji
Pakiet korzyści
Pakiet korzyści przy zakupie projektu
Dane techniczne
Powierzchnia użytkowa: 128.83 m²
Powierzchnia zabudowy: 139.19 m²
Kubatura: 781 m³
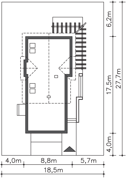
Wymiary budynku: 8.80 x 17.50 m
Kąt nachylenia: 45°
Wysokość budynku: 8.66 m
Wymiary działki: 18.50 x 27.70 m