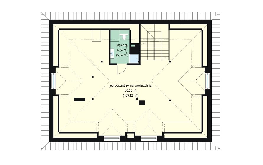
Agat 2 jest nową wersją naszego projektu Agat, tym razem w nowocześniejszej stylistyce, dostosowanej do miejskiej zabudowy na dość wąskiej i niedużej parceli. Często dysponując niedużym placem Inwestorzy chcą zbudować spory dom z dużą ilością pomieszczeń. Nie ma wówczas innego wyjścia jak iść „w górę”, zwiększając wysokość domu i ilość kondygnacji. Agat 2 to doskonała propozycja dla tego rodzaju zabudowy. Dom ma zwartą sylwetkę, zaplanowaną na prostokątnym rzucie. Dom jest piętrowy, zakończony poddaszem z lukarnami, przykrytym czterospadowym dachem. Proporcjonalna bryła, dobrze dobrane detale i kolorystyka powodują, że budynek wygląda atrakcyjnie, reprezentacyjnie, a zarazem jego skala nie jest przesadzona. Architekturę domu można określić jako połączenie tradycyjnej formy, z nowoczesnymi detalami i materiałami. Wnętrze domu : na parterze zaprojektowano salon, jadalnię, kuchnię ze spiżarnią, dodatkowy pokój ( gabinet, lub sypialnię gościnną ), łazienkę, przedsionek z szatnią, oraz garaż z pomieszczeniem gospodarczym. Na piętrze mieszczą się cztery pokoje, w tym apartament rodziców z własną dużą łazienką i garderobą, oraz tarasem ogrodowym, ogólnodostępna druga łazienka, garderoba i pralnia. Poddasze to jednoprzestrzenne 80-ciometrowe wnętrze z łazienką, do dowolnego zagospodarowania. Dom jest bardzo funkcjonalny, energooszczędny i dość prosty w budowie. To bardzo rozsądna propozycja projektu sporego domu na działce miejskiej. Zapraszamy !