+48 17 852 52 30

WYSZUKIWARKA

Typy budynku:

KONDYGNACJE:

PODDASZE:

GARAŻE:

CYPRYS wersja B z podwójnym garażem lustro 172.4 m² (DB: 25134)

Projekt domu CYPRYS wersja B z podwójnym garażem

Budynek niepodpiwniczony, przeznaczony dla rodziny 4-6-osobowej. Zaletami projektu są: przestronna część dzienna oraz kominek, którego usytuowanie umożliwia w prosty sposób rozprowadzenie ciepła po całym domu i podłączenie go do instalacji c.o. Część garażową budynku można poszerzyć tak, aby pomieścił dwa auta.

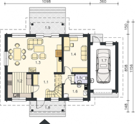
Parter
Poddasze
Elewacje
Przekrój
Sytuacje

Podobne projekty

Pinokio
Charakterystyka domu: jednorodzinny dom...
Promocja
APS 025
Efektowny, zaprojektowany z dbałością o...
Doris G2
Dom parterowy z poddaszem użytkowym,...
Loris G1
Dom parterowy z użytkowym poddaszem,...
Jaworzyna
Dom zaprojektowano dla 5-6 osobowej rodziny. Z...
LK&277
Dom jednorodzinny, parterowy, z poddaszem...
Dom przy Akacjowej
Projekt domu parterowego, z wiatą garażową....
Murator M56 Jabłoniowe wzgórze
Prostą, ekonomiczną bryłę na planie kwadratu...
Powiadom mnie gdy projekt będzie w promocji
Pakiet korzyści
Pakiet korzyści przy zakupie projektu
Dane techniczne
Powierzchnia użytkowa: 172.40 m²
Powierzchnia zabudowy: 164.90 m²
Powierzchnia dachu: 260 m²
Wymiary budynku: 14 x 13.20 m
Kąt nachylenia: 45°
Wysokość budynku: 8.80 m
Wymiary działki: 21 x 22.10 m