+48 17 852 52 30

WYSZUKIWARKA

Typy budynku:

KONDYGNACJE:

PODDASZE:

GARAŻE:

ADAŚ II wersja B z pojedynczym garażem lustro 141 m² (DB: 25080)

Projekt domu ADAŚ II wersja B z pojedynczym garażem

Elegancki, prosty i energooszczędny dom dla 4-5 osobowej rodziny. Budynek niepodpiwniczony, prosty w wykonaniu, zaprojektowany na planie prostokąta. Na parterze znajduje się przestronna kuchnia z jadalnią otwartą dużym oknem na zieleń ogrodu, salon z centralnie umieszczonym kominkiem (możliwość rozprowadzenia ciepła po całym domu). Salon i jadalnię oświetlają przestronne witryny okienne. Taras można połączyć z zacisznym zielonym zaułkiem, osłoniętym lekkim parawanem - pergolą, tworząc zaciszne, intymne wnętrze, miejsce do wspólnego spędzania czasu z rodziną. Użytkowe poddasze posiada 3 wygodne sypialnie z przestronną łazienką. Dopełnieniem wygody użytkowania są dwa balkony - tarasy. Do projektu dołączany jest aneks zawierający wytyczne do budowy projektu ADAŚ jako domu energooszczędnego. Pakiet energooszczędny przeznaczony jest dla klientów, którzy mogą pozwolić sobie na około 5% droższą budowę domu oraz na zainwestowanie dodatkowych środków na rekuperację i wentylację mechaniczną (projekt wentylacji mech. gratis w aneksie). Dodatkowe koszty poniesione podczas budowy będą się zwracać podczas użytkowania domu. Aneks zawiera audyt energetyczny, który wylicza koszt ogrzewania domu przy zastosowaniu standardowych rozwiązań oraz przy budowie domu energooszczędnego.

Parter (97.7 m2)
1. Wiatrołap 4.50 m2
2. Hall + schody 7.80 m2
3. Łazienka 5.00 m2
4. Kotłownia 5.70 m2
5. Pokój 11.60 m2
6. Pokój dzienny 25.60 m2
7. Kuchnia + jadalnia 16.10 m2
8. Garaż jednost. 21.40 m2
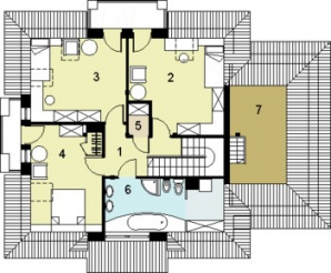
Poddasze (66.2 m2)
1. Korytarz + schody 5.00 m2
2. Łazienka 5.00 m2
3. Pokój 12.90 m2
4. Pokój 10.50 m2
5. Pokój 20.00 m2
6. Pokój 12.80 m2
Elewacje
Przekrój
Sytuacje

Podobne projekty

Amarant MC (MC)
Niewielki, jednorodzinny dom parterowy z...
FOKUS (S-GL 477)
Fokus to klasyczny dom z użytkowym poddaszem....
Columbus (LMBL07)
Columbus (LMBL07): Dom bliźniaczy parterowy z...
WALIA wesja A z pojedynczym garażem
Klasyczny, romantyczny domek idealny dla 4-5...
Z66
Z66 to dom o zwartej i prostej w budowie...
Murator M15a Dworek na lata - wariant I
Tradycja polskiego dworku jest ciągle żywa....
Orlik (CE) paliwo stałe
Dom jednorodzinny wolno stojący, parterowy z...
Promocja
Neptun II NF40
Projekt nowoczesnego domu parterowego...
Powiadom mnie gdy projekt będzie w promocji
Pakiet korzyści
Pakiet korzyści przy zakupie projektu
Dane techniczne
Powierzchnia użytkowa: 141 m²
Powierzchnia zabudowy: 129.50 m²
Powierzchnia dachu: 178.80 m²
Kubatura: 455 m³
Wymiary budynku: 15.20 x 9 m
Kąt nachylenia: 38°
Wysokość budynku: 7.70 m
Wymiary działki: 22.20 x 17 m