+48 17 852 52 30

WYSZUKIWARKA

Typy budynku:

KONDYGNACJE:

PODDASZE:

GARAŻE:

Projekt domu Berlin II (DCP160a)

Projekt domu energooszczędnego, w którym oprócz niewątpliwych zalet energooszczędnych, projekt posiada dobrze rozwiązaną funkcję pomieszczeń. Na parterze w przestrzeń dzienną łączy się pokój dzienny, kuchnia oraz jadalnia. Efekt przestrzenności potęguje antresola poddasza, na którą prowadzą ażurowe schody. Na poddaszu znajdują się trzy sypialnie, łazienka oraz pralnia, która w miarę potrzeb może stać się także garderobą.

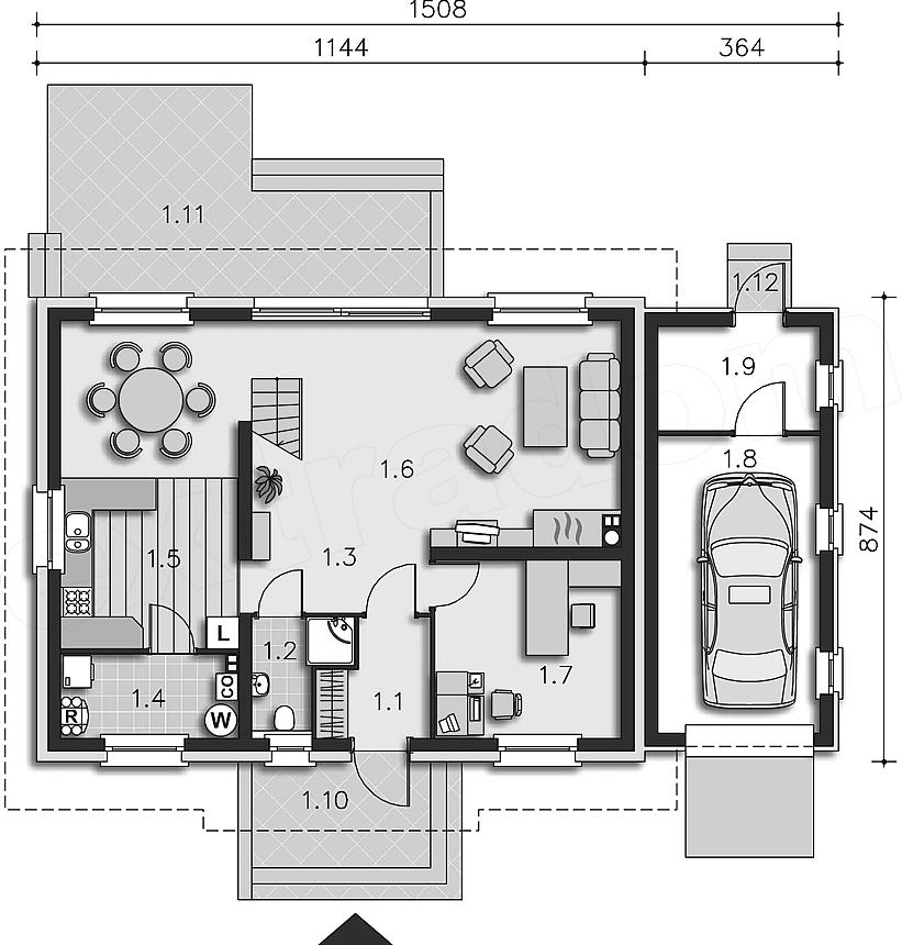
Parter (127.92 m2)
1. Kuchnia, jadalnia 3.99 m2
2. Pokój dzienny 3.17 m2
3. Pokój 4.13 m2
4. Garaż 5.14 m2
5. Pom.pomocnicze 20.48 m2
6. Podest 26.99 m2
7. Taras 11.62 m2
8. Podest 16.88 m2
9. Wiatrołap 5.91 m2
10. Łazienka 6.72 m2
11. Komunikacja 21.81 m2
12. Pom.gosp. 1.08 m2
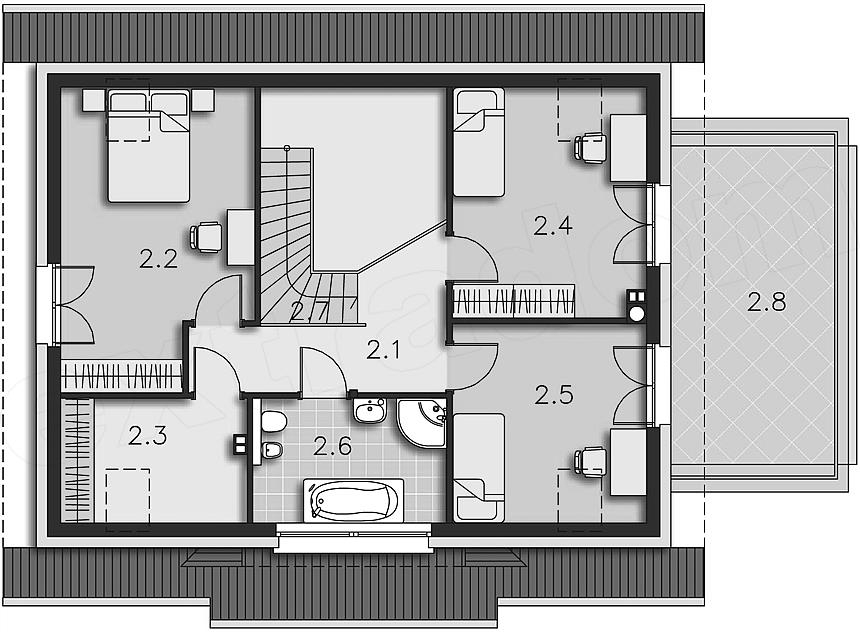
Poddasze (79.2 m2)
1. Komunikacja 7.95 m2
2. Pokój 14.06 m2
3. Garderoba 4.11 m2
4. Pokój 10.85 m2
5. Pokój 9.14 m2
6. Łazienka 6.59 m2
7. Schody 3.61 m2
8. Balkon 22.89 m2
Elewacje
Sytuacje

Podobne projekty

ADAŚ wersja A bez garażu
Elegancki, prosty i energooszczędny dom dla 4-5...
AKACJA 2 wersja A bez garażu
Budynek niepodpiwniczony, przeznaczony dla...
ASIA wersja B bez kalenicy, z garażem
Zgrabny dom parterowy, niepodpiwniczony, z...
BARTEK wersja A z wiatą
Dom w cenie mieszkania. Nieduży, prosty w...
Promocja
BILBO wersja A - bez ścianki kolankowej
Nieduży, niepodpiwniczony domek parterowy z...
BOROWIK wersja B niepodpiwniczona
Nieduży domek, parterowy z poddaszem użytkowym,...
BORYS wersja A bez garażu
Niezwykle funkcjonalny, podpiwniczony dom...
DOMINIKA wersja A
Zaprojektowano Dominikę jako wygodny dom na...
Powiadom mnie gdy projekt będzie w promocji
Pakiet korzyści
Pakiet korzyści przy zakupie projektu
Dane techniczne
Powierzchnia użytkowa: 137.74 m²
Powierzchnia zabudowy: 130.58 m²
Kubatura: 752 m³
Wymiary budynku: 15.10 x 8.80 m
Kąt nachylenia: 40°
Wysokość budynku: 8.30 m
Wymiary działki: 23.10 x 21.20 m