+48 17 852 52 30

WYSZUKIWARKA

Typy budynku:

KONDYGNACJE:

PODDASZE:

GARAŻE:

Projekt domu AMELKA wersja A

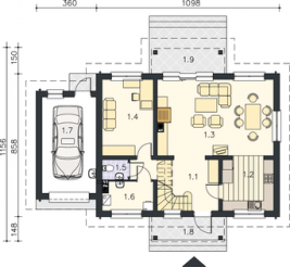
Wygodny dom dla rodziny 3-6 osobowej, ceniącej sobie otwarte przestrzenie domu przenikające się z ogrodem. Projekt przewiduje wyraźny podział na część dzienną (parter) i nocną (piętro). Parter to przestronny pokój dzienny, połączony poprzez jadalnię i hall z kuchnią i gabinetem, służy integracji mieszkańców i wspólnemu spędzaniu czasu. Gabinet może służyć jako pokój gościnny z dostępem do łazienki z prysznicem. Na piętrze, przestronna sypialnia z balkonem na ogród, osobną garderobą i łazienką zapewnia duży komfort i intymność gospodarzom domu. Duży pokój nad garażem można przeznaczyć na fitness z sauną, hobby lub bilard. Prosta konstrukcja i optymalne wykorzystanie kubatury budynku zapewniają niski koszt wybudowania stosunkowo dużej powierzchni użytkowej domu. Sąsiedztwo kominka i kotłowni pozwala na zintegrowanie systemu grzewczego z kominkiem oraz obsługę domu praktycznie przez jeden komin.

Parter
Poddasze
Elewacje
Przekrój
Sytuacje

Podobne projekty

Promocja
AZALIA II wersja C z pojedynczym garażem
Dom parterowy, z użytkowym poddaszem, nieduży,...
Promocja
DAKOTA wersja C paliwo stało z garażem, wjazd z boku
Wygodny, przestronny dom na wąską działkę...
Matylda G1
Dom piętrowy niepodpiwniczony z garażem...
LK&617
Dom jednorodzinny, parterowy, podpiwniczony z...
Z48
Projekt Z48 to zgrabny dom o komfortowym wnętrzu...
Ballada (CE-SI) paliwo stałe
Dom jednorodzinny, wolno stojący, parterowy z...
Promocja
Onyks 3 (DR-T)
Nowoczesny dom mieszkalny. Bardzo ciekawa funkcja...
Powiadom mnie gdy projekt będzie w promocji
Pakiet korzyści
Pakiet korzyści przy zakupie projektu
Dane techniczne
Powierzchnia użytkowa: 189.40 m²
Powierzchnia zabudowy: 175.30 m²
Powierzchnia dachu: 273 m²
Wymiary budynku: 13.10 x 15.30 m
Kąt nachylenia: 45°
Wysokość budynku: 8.80 m
Wymiary działki: 21.10 x 23.30 m